Forum Koga • Strona główna - Koga Portal - Modele - Żaglowce - Statki - Okręty - Forum modelarskie • "Western River" skala 1:25 - Strona 3
Strona 3 z 16

Re: "Western River" skala 1:25

: 05 lip 2013, 12:29
autor: mirek
Jak tak będą robione rysunki to gwarantuję pełen sukces

Re: "Western River" skala 1:25

: 05 lip 2013, 18:18
autor: Wojtek-Sos
Złożeniówka szkieletu kadłuba
Kadłub - szkielet.JPG

Re: "Western River" skala 1:25

: 05 lip 2013, 19:23
autor: sina2
jak mogę zasugerować, to na rzucie aksonometrycznym włącz kolor, rysunek staje się dużo bardziej czytelny gdy widać ściany nie tylko same krawędzie

Re: "Western River" skala 1:25

: 05 lip 2013, 19:45
autor: Wojtek-Sos
Kadłub - szkielet 01.JPG

Masz rację, rysunek jest bardziej czytelny.

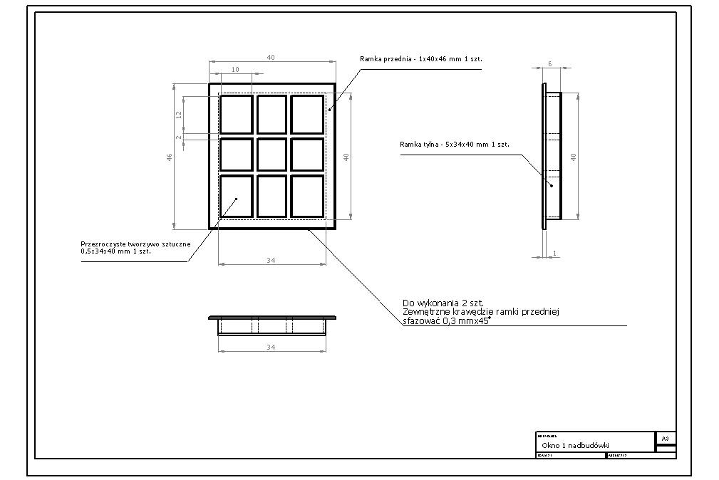
Re: "Western River" skala 1:25

: 06 lip 2013, 14:01
autor: Wojtek-Sos
Przykłady rysunków wykonawczych:
Drzwi no1P1.JPG

okno.JPG

Re: "Western River" skala 1:25

: 06 lip 2013, 15:04
autor: mirek
Kapitalne są te rysunki , Wojtku wielki szacunek za włożony trud !!!!

Re: "Western River" skala 1:25

: 06 lip 2013, 16:48
autor: Andrzej1
Coś dziwnego, są wymiary, a mnie mówiono, że na planach modelarskich nie nanosi się
wymiarów. Pewnie Wojtek nie jest modelarzem i nie wiedział.
Uważam, że jest to R E W E L A C J A.

Z ukłonami
Andrzej Korycki

Re: "Western River" skala 1:25

: 06 lip 2013, 19:36
autor: Wojtek-Sos
Dzięki wszystkim za miłe słowa. Oby mi cierpliwości wystarczyło, bo roboty przy tym jest trochę.

Re: "Western River" skala 1:25

: 06 lip 2013, 22:42
autor: gdas
Witam
a w jakim programie jest to projektowane , jeśli to nie tajemnica

Re: "Western River" skala 1:25

: 07 lip 2013, 11:07
autor: Wojtek-Sos
Rysunek wykonawczy kotła
Kocioł.JPG